【新築戸建】仲介手数料無料♪新青梅街道にアクセス良好!生活利便GOOD☆南西角地の3LDKのお家です☆
- 価格
- 3380万円
- 新築戸建
- 間取
- 3LDK
|
|
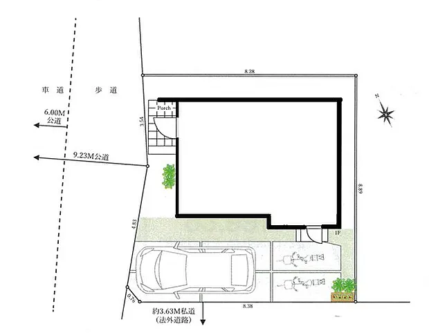
| 所在地 | 東京都東大和市高木3丁目 |
|---|---|
| 交通 | 西武多摩湖線武蔵大和駅 徒歩15分 |
| 築年月 | 2025/11 | 新築/中古 | |
|---|---|---|---|
| 面積 | 59.12m² | 計測方式 | |
| バルコニー | m² | 向き | |
| 建物階数 | 部屋階数 | 階 | |
| 部屋/区画番号 | 総戸/区画数 | ||
| 建物構造 | 木造 | ||
| 敷地全体面積 | 74.38m² | 延べ床面積 | m² |
| 間取内容 | 1階LDK10.5畳1室 2階洋室5.5畳1室 2階洋室5.18畳1室 2階洋室3.74畳1室 |
||
| 駐車場 | 取引態様 | ||
| 引渡/入居時期 | 現況 | ||
| 地目 | 宅地 | 用途地域 | 第一種低層住居専 |
| 都市計画 | 市街化区域 | 地勢 | |
| 建ぺい率 | 40% | 容積率 | 80% |
| 土地権利 | 接道状況 | 角地 | |
| 接道方向1 | 西 | 接道間口1 | m |
| 接道方向2 | 南 | 接道間口2 | m |
| 周辺環境 | 東大和市立第四小学校 東大和市立第一中学校 | ||
| 設備・条件 | 都市ガス 公営水道 排水下水 | ||
| 物件番号 | |||
※物件掲載内容と現況に相違がある場合は現況を優先と致します。
お問い合わせ先
株式会社マスターハウジング
〒207-0033
東京都東大和市向原6-1408-31
TEL 042-843-8308 / FAX 042-843-8309
営業時間 9:30~19:00
定休日 毎週水曜日
宅建免許番号: 東京都知事 (1)第96653号

































