桜街道駅から徒歩3分☆大人気の駅近物件!!インターネット無料!!カードキーで施錠もスマート!1LDKのお部屋です♪

間取り 外観 居室・リビング 居室・リビング(別角度) 洋室 洋室(別角度) キッチン 浴室 洗面台 トイレ
賃料
8万円
アパート
間取
1LDK

共益費・管理費
5000円
敷金
0
礼金
0
更新料
1ヶ月
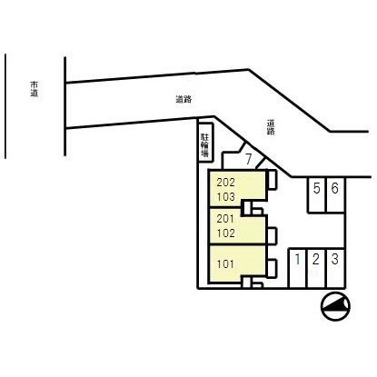
所在地 東京都東大和市桜ヶ丘4丁目
ヴィラアベニュー
交通 多摩都市モノレール桜街道駅 徒歩3分
築年月 2005/2 新築/中古
面積 38.0m² 計測方式
バルコニー 向き 南西
建物階数 地上2階  部屋階数 1階
部屋/区画番号 103 総戸/区画数 5戸
建物構造 軽量鉄骨
間取内容 LDK9.0畳 洋室6.0畳        
バルコニー
駐車場 9900円  ご利用の場合は別途敷金・手数料がかかります。 取引態様
引渡/入居時期 即時 現況
周辺環境
設備・条件 都市ガス/対面キッチン/バス・トイレ別/追い焚き/換気システム/洗面所独立/室内洗濯機置き場/TVドアホン/シャッター雨戸/カードキー/インターネット無料
物件番号
W.INクローゼット床下収納バルコニーエアコンTVインターホン換気システムコントローラー玄関(内)玄関(外)駐車場駐輪場区画図
※物件掲載内容と現況に相違がある場合は現況を優先と致します。

お問い合わせ先

株式会社マスターハウジング
〒207-0033
東京都東大和市向原6-1408-31
TEL 042-843-8308 / FAX 042-843-8309
営業時間 9:30~19:00
定休日 毎週水曜日
宅建免許番号: 東京都知事 (1)第96653号

お名前 (必須)

メールアドレス (必須)

題名

ご希望内容をチェックしてください。

メッセージ本文